初次購買屏蔽式管道離心泵的用戶有必要了解屏蔽泵的說明書后才可以正常使用屏蔽泵,正確的操作方法可以延長管道屏蔽泵的使用壽命。
產品概述
屏蔽泵是本公司針對市面上水泵普遍出現的噪音高和振動大的的缺點,新研發的一種低噪音屏蔽泵產品。對于泵與電機進行了一體化設計,泵腔與電機是一個密封整體,去掉了傳統離心泵的機械密封結構,進而解決了傳統離心泵機械密封損壞而出現的液體泄漏情況,可以使液體介質做到完全沒有泄露。去掉了滾動軸承,使用浸漬樹脂石墨軸承,摩擦系數會變小,通過自身泵送的流體介質來進行潤滑軸承,可以使整機運行時低噪聲,管道屏蔽泵適用于工業、城市建筑給水、空調冷熱水循環、消防管道增壓、遠距離輸送水等場合使用。屏蔽泵具有結構合理、安裝便捷、性能穩定、噪聲低振動小、無泄漏和使用壽命長等特點。
產品說明
屏蔽泵的結構如下圖所示。屏蔽泵又被稱為屏蔽泵和電機一體化結構,屏蔽泵配件主要是由泵體、葉輪、石墨軸承、連接體、轉子、定子、屏蔽套、電機殼等構成。屏蔽泵為臥式結構和立式結構,本公司生產的屏蔽泵為立式屏蔽泵結構。進口與出口位于同一水平軸線上,進出口徑規格相同可以像閥門一樣安裝在管路的任何部位上,拆卸與安裝比較方便,節省占地面積。屏蔽泵利用聯接體和電機構成一體,電機轉子定子各有屏蔽套進行密封隔離。軸承使用泵送液體作為潤滑劑和冷卻液,液體在電機內部進行循環,對電機可以起到冷卻作用,對軸承起到潤滑作用。屏蔽泵設有底座能直接安裝在地基上,也能用隔振墊安裝或者帶聯接板加裝隔振器。
型號意義
PBG50R-200(Ⅰ)A(B)(C)
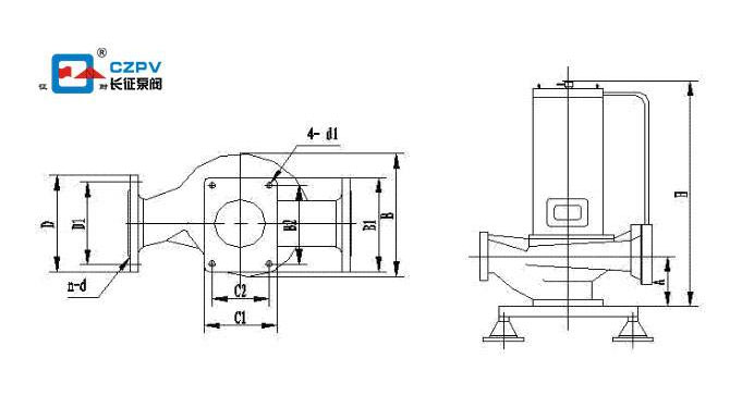
PBG-屏蔽式管道離心泵
50-泵進出口直徑(mm)
R-流體類別(普通不標注,熱水為R,腐蝕性流體為P)
200-葉輪名義外徑(mm)
(Ⅰ)-流量分類
A-葉輪經過一次切割
(B)-葉輪經過二次切割
(C)-葉輪經過三次切割
安裝尺寸圖

安裝說明
①安裝前應該查看泵組緊固件有沒有松動情況,泵體流道內有沒有異物堵塞,避免屏蔽泵運行時出現葉輪與泵體損壞。
②安裝過程中管路的重量不應該加在屏蔽泵上,需要有各自的支撐體,水泵的進出口應該安裝軟接頭,防止屏蔽泵的連接法蘭變形影響性能與壽命。
③假如用來泵送熱水或者其他高溫液體時,為了確保屏蔽泵的管路不會受熱變形,可以不用固定地腳螺栓,管路系統受到熱脹冷縮時屏蔽泵會和管路一起移動。
啟動、運行與停車
啟動、運行
①屏蔽泵灌水排氣后再把進口閥打開,可以使液體充分流進泵腔內,將水泵電機頂部排氣閥打開,等到水確認沒有氣泡后再把放氣閥關閉。
②出口閥管道關閉可以減少啟動電流。
③查看各部件是否正常。
④接通電源點氣動來確定正確運行方向,正確的運行方向可以查看出口壓力表的壓力進行確定。
停車
①將屏蔽泵輸出口管路閥門關閉。
②把電源切斷再將電機停止運行。
③將進口閥門關閉。
維護保養
①定期記錄電源電壓的變化與電壓的不平衡度。電源電壓太高或者太低,三相電壓的不平衡導致電流的不平衡很有可能引起電機發熱或者其他異常情況。
②定期測量石墨軸承與軸套的間隙,可以保證屏蔽套和轉子屏蔽套之間間隙均勻運行可靠。
屏蔽泵說明書由離心泵廠家總結。推薦閱讀:屏蔽式管道離心泵的原理及結構


FS型玻璃鋼離心泵
PF型強耐腐蝕化工離心泵
IH(IS) 不銹鋼化工離心泵
